
1、說明
ZSJZ型水流指示器是自動噴水滅火系統的組成部分,利用噴淋管網內水的流動推動葉片,觸動微動開關,從而將水流信號轉化為電信號,與控制器連接以啟動火災自動報警系統,可用于檢測自動噴淋系統運行及確定火災發生的區域。
適用于濕式、干式、循環及閉式自動噴水-泡沫聯用系統中。
產品標準:GB5135.7-2003《自動噴水滅火系統第7部份:水流指示器》
2、結構
1)連接形式:法蘭式、馬鞍式、卡箍式、焊接式、螺紋式?
2)傳感形式:橡膠傳感組件
3、技術性能
1)額定工作壓力:1.2MPa;
2)密封實驗壓力:2.4MPa;
3)靈敏度:流量≤15L/min時,不報警;
4)流量15L/min~37.5L/min,報警;
5)延遲性:在報警流量下,延遲2~90s;
6)開關容量:AC220V1A DC24V0.5A
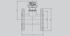
4、規格及其外形和主要連接尺寸
1) ZSJZ·F(法蘭式)DN50-DN250

| 公稱直徑(mm) | L(m) | H(m) | 法蘭外徑D1(m) | 螺栓孔中心圓直徑D2(m) | 螺栓孔n×φ |
| 50 | 160 | 138 | 165 | 125 | 4×18 |
| 65 | 160 | 146 | 185 | 145 | 4×18 |
| 80 | 160 | 152 | 195 | 160 | 8×18 |
| 100 | 160 | 162 | 215 | 180 | 8×18 |
| 125 | 160 | 175 | 250 | 210 | 8×18 |
| 150 | 160 | 188 | 280 | 240 | 8×22 |
| 200 | 170 | 212 | 335 | 295 | 12×22 |
| 250 | 170 | 237 | 405 | 355 | 12×26 |
2) ZSJZ·M(馬鞍式)DN50-DN250

| 公稱通徑 | 推薦管道尺寸外徑×壁厚 | L | H≈ | 管道開口直徑 |
| 50 | 60.3×3.6 | 88 | 138 | φ39 |
| 65 | 76.1×4 | 94 | 146 | φ39 |
| 80 | 88.9×4.3 | 105 | 152 | φ50 |
| 100 | 114.3×5 | 134 | 162 | φ50 |
| 125 | 139.7×5 | 164 | 175 | φ50 |
| 150 | 165.1×5.4 | 190 | 188 | φ50 |
| 200 | 219.1×5.4 | 237 | 212 | φ50 |
| 250 | 273×9.5 | 286 | 243 | φ50 |
3) ZSJZ.G(卡箍式)DN65-DN150

| 公稱通徑 | 推薦管道 尺寸外徑×壁厚 | L | H≈ | 管道開口直徑 |
| 65 | 76.1×3.6 | 1 14 | 146 | φ44 |
| 80 | 88.9×5 | 135 | 152 | φ51 |
| 100 | 114.3×5 | 155 | 162 | φ51 |
| 125 | 139.7×5 | 185 | 175 | φ51 |
| 150 | 165.1×5.4 | 214 | 188 | φ51 |
4) ZSJZ.R(螺紋式)DN32-DN200

管路上用一個中口為Rc1",兩端為公稱通徑相塒應的異徑一通,即可安裝
5) ZSJZ·H(焊接式)DN50-DN200

相應管路開一φ43孔即可焊接


